+7 (812) 325-38-38

Для звонков в Санкт-Петербурге

+7 (964) 325-38-38

Звонки и WhatsApp

Тихо, солнечно

Об этом объекте

Арт. 106818155
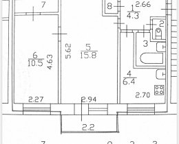
Предлагается двухкомнатная квартира в кирпичном доме, в центре Ломоносова, хорошая локация, все рядом: магазины, школа, детский садик, во дворе детская площадка, ж/д станция пешком, удобное сообщение с городом, быстрый выезд на КАД.
В квартире начали делать капитальный ремонт, поменяли все окна, поставили новые батареи, убрали кладовку во второй комнате, сделали комнаты изолированными.
Парадная чистая, соседи тихие, живут давно.
Изменились жизненные обстоятельства. Продается.
Наследство от сына родителям, в Договоре полная стоимость, возможна ипотека, все виды субсидий.

Звоните сейчас! Хороший объект продаётся быстро!
*********************************
· Почему нужно работать с агентством недвижимости «Невский Простор»?
· Услуги сертифицированы Российской Гильдией Риэлторов (РГР).
· Профессиональная ответственность застрахована. САО «ВСК» вернёт до 10 млн. руб. в случае утраты права собственности.
· Бесплатное юридическое сопровождение сделки.
· Помощь в одобрении ипотеки по заниженной ставке.

Особенности

  • Ипотека
Скачать PDF Версия для печати

Объекты на карте

  • Карта
  • 3D панорама
Остались вопросы?
Закажите консультацию у опытных менеджеров, которые помогут Вам во всех вопросах.
Бесплатная консультация
Действуем в интересах клиента.
Гарантируем безопасность и исключаем риски.