+7 (812) 325-38-38

Для звонков в Санкт-Петербурге

+7 (964) 325-38-38

Звонки и WhatsApp

Шикарный дом в современном стиле

Об этом объекте

Арт. 63418958
**Уникальное предложение! Продаётся уютный дом с тёплой беседкой и сауной, выполненный в современном с изысканным дизайном!**

**Расположение:** Коттеджный поселок «ГОРКИ-ЛЭНД» расположен вблизи деревни Горки Гатчинского района, в 20 километрах от КАД. Участок с живописным видом по всему периметру, общей площадью 15 квт, обеспечен газом. Дом выполнен из качественных материалов: плита, газоблок, монолитные перекрытия. Окна с энергосберегающими пластиковыми стеклами для сохранения тепла.

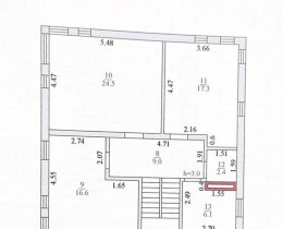
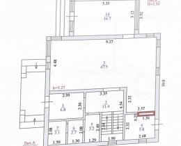
**Внутреннее устройство:** В доме имеется приточная вентиляция, установлены приточные клапана на стенах. Вас ждут три уютные комнаты площадью 16-24м², небольшая постирочная. Для вашего комфорта предусмотрены два санузла: один с душем и биде, другой с ванной.

‍️ **Релакс и развлечения:** На территории участка расположена небольшая, но уютная сауна. Беседка площадью 136м² станет отличным местом для отдыха и встреч с друзьями. Внутри Вы найдете каркас заливной и монолитную крышу с вырезом для фонаря. Окна выполнены из алюминия без стыкующих профилей.

**Развлечения для всех:** В беседке установлен караоке аппарат AST, звук от Yamaha, огромный телевизор. Стол из палубы американского ореха придает интерьеру особый шарм. Обстановка беседки выполнена в лоншафтном стиле, сочетающем роскошь и уют.

**Гараж-навес:** Теплый гараж-навес также выполнен из плиты и газоблока, обеспечивая надёжное хранение вашего автомобиля.

**Территория:** Забор укреплен сваями на 2 метра в землю и соединен лентой из бетона, обеспечивая надежную защиту и приватность. Участок всегда остается сухим благодаря своему расположению выше соседних участков.

Не упустите возможность стать обладателем этого уникального дома, где роскошь сочетается с комфортом!


Звоните сейчас! Хороший объект продаётся быстро!
*********************************

Особенности

  • Ипотека
Скачать PDF Версия для печати

Объекты на карте

  • Карта
  • 3D панорама
Остались вопросы?
Закажите консультацию у опытных менеджеров, которые помогут Вам во всех вопросах.
Бесплатная консультация
Действуем в интересах клиента.
Гарантируем безопасность и исключаем риски.