+7 (812) 325-38-38

Для звонков в Санкт-Петербурге

+7 (964) 325-38-38

Звонки и WhatsApp

Пряма продажа!!

Об этом объекте

Арт. 124734899
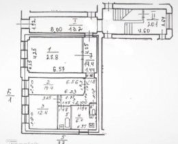
Продаем двустороннюю 3-х к кв общей площадью 80.2 кв.м., в квартире ремонт- косметический. Выполнена стяжка полов в помещениях МОП, в части коридора , примыкающей к МОП ( местам общего пользования), в двух комнатах.

Квартира располагается на первом этаже кирпичного 4-х этажного дома 1877 г. п., капремонт выполнен в 1954 г., тип перекрытий - смешанные по документам, по факту в одной комнате и в коридоре при входе в квартиру.

Площадь комнат в квартире 27.8+14.4+12.4, кухня 6.4, ванная комната 3,7 , высота аотолков-2.9 м.

В 2020 году выполнен ремонт внутри домовых систем холодного и горячего водоснабжения, внутридомовых инженерных систем водоотведения и электроснабжения.

Два взрослых собственника. Срок . владения квартирой в одной семье с 2007 г. Приватизация. Обременений, долгов и перепланировок нет.

Вход в подъезд со стороны улицы Моисеенко, однако сам двор закрыт, имеется парковочное место.

Рядом расположен новый деловой центр Невская Ратуша.


Звоните сейчас! Хороший объект продаётся быстро!
*********************************
· Почему нужно работать с агентством недвижимости «Невский Простор»?·
Услуги сертифицированы Российской Гильдией Риэлторов (РГР).
· Профессиональная ответственность застрахована. СПАО «ИНГОССТРАХ» вернёт до 10 млн. руб. в случае утраты права собственности.
· Бесплатное юридическое сопровождение сделки.
· Помощь в одобрении ипотеки.

Особенности

  • Ипотека
Скачать PDF Версия для печати

Объекты на карте

  • Карта
  • 3D панорама
Остались вопросы?
Закажите консультацию у опытных менеджеров, которые помогут Вам во всех вопросах.
Бесплатная консультация
Действуем в интересах клиента.
Гарантируем безопасность и исключаем риски.